Ctype|プラン|【公式】レクシア熊本 ザ・コア|熊本市内の新築分譲マンション

Ctype

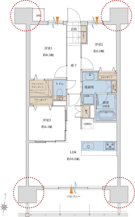
3LDK +WIC (2~14F)

専有面積71.50(21.62坪)

バルコニー面積/11.34㎡(3.43坪)

生活空間を広くするアウトポール設計

センターオープンサッシ採用

洋室(3)を開放すれば20.7帖の広々空間に

来場予約はこちら 資料請求はこちら