I1type|プラン|【公式】レクシア熊本 ザ・コア|熊本市内の新築分譲マンション

限定1

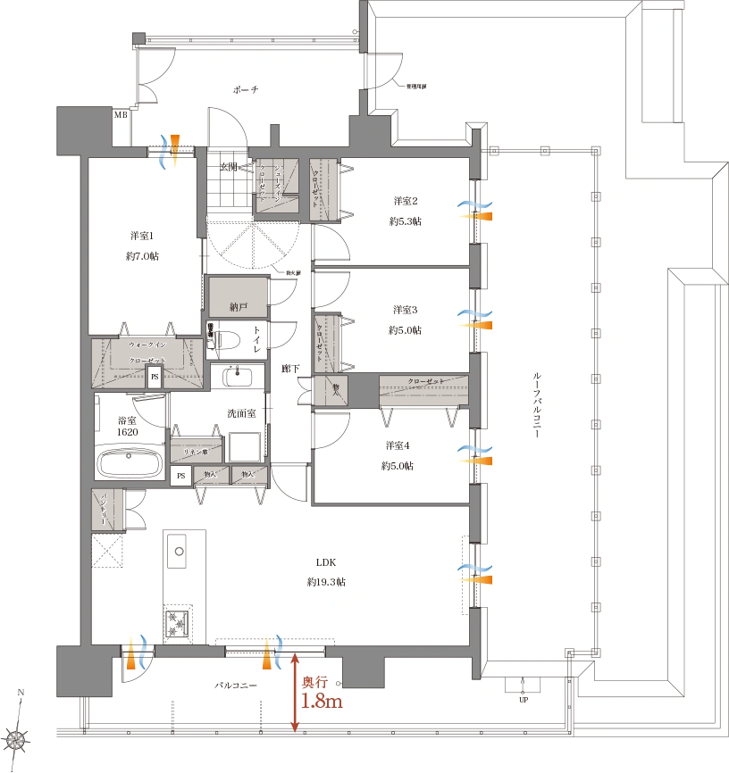
I1type

4LDK+WIC+SIC+N+パントリー

専有面積100.44(30.38坪)

ルーフバルコニー面積/31.59㎡(9.55坪)

バルコニー面積/18.76㎡(5.67坪)

31㎡超のルーフバルコニー付き

生活空間を広くするアウトポール設計

19帖超のゆとりと、2面採光がもたらす明るく
開放的なリビング・ダイニング

勝手口とパントリーを備えた、
明るく使い勝手の良いキッチン

来場予約はこちら 資料請求はこちら